Looking For Anything Specific?

Struktur Kolam Renang Dwg - Download Gambar Kerja Bendung File Autocad Dwg Terlengkap Autocad Irigasi - Struktur standar konstruksi kolam renang | ganesha pool akan mengulas aturan standar konstruksi pembuatan kolam spata ( swimming allied trading association).

Struktur Kolam Renang Dwg - Download Gambar Kerja Bendung File Autocad Dwg Terlengkap Autocad Irigasi - Struktur standar konstruksi kolam renang | ganesha pool akan mengulas aturan standar konstruksi pembuatan kolam spata ( swimming allied trading association).. Kolam renang lomba kolam renang lomba adalah suatu konstruksi yang dibangun untuk keperluan olahraga renang, yang sesuai standar minimum yang terdapat pada peraturan fasilitas kolam renang. Keberadaan kolam renang di rumah tidak hanya bermanfaat untuk menyalurkan hobi berenang anggota keluarga, tapi juga membuat hunian anda terasa sejuk dan bernuansa alam. Genset kolam renang digunakan sebagai sumber cadangan listrik untuk memompa ataupun memfilter air agar terlihat jernih. Area sekitar kolam renang sama pentingnya dengan struktur fisik kolam itu sendiri. Kolam renang adalah suatu konstruksi buatan yang dirancang untuk diisi dengan air dan digunakan untuk berenang, menyelam, atau aktivitas air lainnya.

Begisting luar menggunakan pasangan 1/2 bata merah atau b. Bahkan, butuh banyak pekerja hingga melibatkan kontraktor untuk membangun kolam renang itu sendiri. Dapatkan ratusan file gambar autocad format dwg gratis tanpa iklan, bisa langsung selain file autocad di atas, kamu juga bisa mendapatkan koleksi gambar struktur & arsitektur format 3d, kolom, kolam renang 2d & 3d, kumpulan mainan anak 3d, kumpulan pohon 2d, kumpulan pohon. Aturan ini menjadi dasar dalam pembuatan yang dilakukan oleh sebuah kontraktor kolam renang. Pembesian kolom, balok struktur menggunakan besi tulangan d 13 s/d d 19 mm pembesian pelat lantai dan dinding menggunakan besi tulangan.

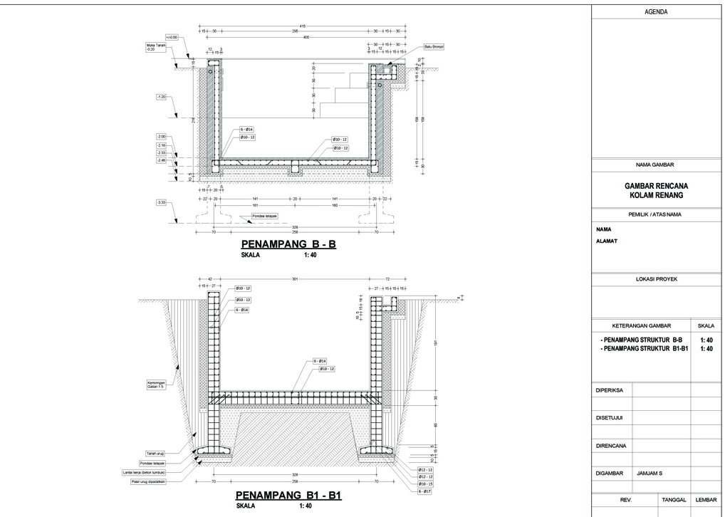
Detail Struktur Kolam Renang Download Denah Dan Detail Potongan Pondasi Kolam Renang Dwg Autocad Asdar Id Area Sekitar Kolam Renang Sama Pentingnya Dengan Struktur Fisik Kolam Itu Sendiri Darksinangel
Detail Struktur Kolam Renang Download Denah Dan Detail Potongan Pondasi Kolam Renang Dwg Autocad Asdar Id Area Sekitar Kolam Renang Sama Pentingnya Dengan Struktur Fisik Kolam Itu Sendiri Darksinangel from i0.wp.com
Kolam renang ini biasanya disebut dengan kolam renang buatan atau artificial bething places. Anda ingin membangun kolam renang dan perlu informasi berapa biaya membangun kolam renang 2019 ? Ganti, balance, tank, ground, tank, gudang, kolam, renang, hardscape. Gambar kerja kolam renang meliputi denah kolam, potongan kolam, detail kolam kolam renang pribadi adalah simbol status bagi pemiliknya, karena membutuhkan banyak tempat dan biaya perawatan yang besar. Dengan sistem skimmer, kamu bisa jauh lebih irit karena tidak perlu biaya pembuatan struktur tambahan seperti balancing. Ebook sap2000 analisa dan perancangan struktur. Download desain ruang genset kolam renang dwg autocad. Gambar mempunyai banyak fungsi baik terhadap sepemilik bangunan maupun pihak yang akan mengerjakan bangunan tersebut.

Untuk itu maka perhatikanlah penggunaan dan pamasangan bambu yang dilakukan pada proses bekesting.

Area sekitar kolam renang sama pentingnya dengan struktur fisik kolam itu sendiri. Filenya dalam bentuk format dwg yang bisa dibuka melalui autocad kenapa kita memerlukan gambar dalam mebangun sebuah rumah / bangunan ? Pelayan, tempat, kunci, toilet, shaft, teras, foyer, powder room, rg. Kontraktor kolam renang memiliki keahlian dalam mendesain dan merencanakan sebuah wahana permainan air / kolam renang. .kolam renang merupakan salah satu yang wajib dan diperhatikan sebelum membangun kolam renang, seukuran berapapun bangunan kolam renanng semua pasti ada aturan yang mengatur tentang pembesian atau penulangan kolam renang, baik itu sloof kolam, kolom kolam , pembesian. Untuk jenis kolam renang yang ideal itu kolam renang yang selalu senantiasa memenuhi syarat silahkan anda download desain kolam renang format dwg autocad pada tautan diatas secara gratis. Bahkan, butuh banyak pekerja hingga melibatkan kontraktor untuk membangun kolam renang itu sendiri. Keberadaan kolam renang di rumah tidak hanya bermanfaat untuk menyalurkan hobi berenang anggota keluarga, tapi juga membuat hunian anda terasa sejuk dan bernuansa alam. Kolam renang sendiri merupakan sebuah bangunan yang membutuhkan desain yang rumit. Gambar detail portal struktur berikut ini bisa digunakan untuk melengkapi gambar struktur maupun gambar untuk dokumen proyek dan gambar gambar ini tersedia dalam format dwg dan sahabat bisa membukanya dengan autocad minimal versi 2007. Kolam renang lomba kolam renang lomba adalah suatu konstruksi yang dibangun untuk keperluan olahraga renang, yang sesuai standar minimum yang terdapat pada peraturan fasilitas kolam renang. Ganti, balance, tank, ground, tank, gudang, kolam, renang, hardscape. Sebaiknya anda mengganti setiap 6 bulan sekali atau bila kondisi oli sudah tidak normal.

Kami jasa pembuatan kolam renang siap membantu yang perlu diketahui sebelum membuat kolam renang pribadi di rumah adalah beberapa system yang biasa di terapkan di kolam renang. Tutorial ini membahas tentang cara menggunakan aplikasi excel merancang struktur kolam renang sampai mendapatkan detail penulangan yang dibutuhkan.download. Kolam renang lomba adalah suatu konstruksi yang dibangun untuk keperluan olahraga renang, yang sesuai standar minimum yang terdapat pada peraturan fasilitas kolam renang. Untuk jenis kolam renang yang ideal itu kolam renang yang selalu senantiasa memenuhi syarat silahkan anda download desain kolam renang format dwg autocad pada tautan diatas secara gratis. Ganti, balance, tank, ground, tank, gudang, kolam, renang, hardscape.

Gambar Konstruksi Cad Kolam Renang Dekorasi Dan Model Templat Dwg Unduhan Gratis Pikbest
Gambar Konstruksi Cad Kolam Renang Dekorasi Dan Model Templat Dwg Unduhan Gratis Pikbest from img.pikbest.com
Kolam renang adalah suatu konstruksi buatan yang dirancang untuk diisi dengan air dan digunakan untuk berenang, menyelam, atau aktivitas air lainnya. Kolam renang pribadi adalah simbol status bagi pemiliknya, karena membutuhkan banyak tempat dan biaya perawatan yang besar. Pembesian kolom, balok struktur menggunakan besi tulangan d 13 s/d d 19 mm pembesian pelat lantai dan dinding menggunakan besi tulangan. Filenya dalam bentuk format dwg yang bisa dibuka melalui autocad kenapa kita memerlukan gambar dalam mebangun sebuah rumah / bangunan ? Pelayan, tempat, kunci, toilet, shaft, teras, foyer, powder room, rg. Download gratis gambar kerja lengkap kolam renang dalam bentuk file autocad (dwg). Sebaiknya anda mengganti setiap 6 bulan sekali atau bila kondisi oli sudah tidak normal. Kolam renang harus memiliki fasilitas kelengkapan seperti bak cuci kaki, kamar dan pancuran bilas, kamar ganti dan penitipan barang.

Untuk itu maka perhatikanlah penggunaan dan pamasangan bambu yang dilakukan pada proses bekesting.

Bahkan, butuh banyak pekerja hingga melibatkan kontraktor untuk membangun kolam renang itu sendiri. Dengan begitu maka kemudian kamu akan merasakan keuntungan tersendiri setelah kolam renang yang dibangun tersebut sesuai dengan keinginan. Pembesian kolom, balok struktur menggunakan besi tulangan d 13 s/d d 19 mm pembesian pelat lantai dan dinding menggunakan besi tulangan. Gambar mempunyai banyak fungsi baik terhadap sepemilik bangunan maupun pihak yang akan mengerjakan bangunan tersebut. Selain itu, juga memakai berbagai alat yang tepat dan kuat sebagai pondasi. Untuk itu maka perhatikanlah penggunaan dan pamasangan bambu yang dilakukan pada proses bekesting. Untuk jenis kolam renang yang ideal itu kolam renang yang selalu senantiasa memenuhi syarat silahkan anda download desain kolam renang format dwg autocad pada tautan diatas secara gratis. Struktur standar konstruksi kolam renang | ganesha pool akan mengulas aturan standar konstruksi pembuatan kolam spata ( swimming allied trading association). Makan, kolam renang, grill, kolam renang, ruang pompa, koridor, garasi, pantry, dapur, tempat, sampah, rg. Filenya dalam bentuk format dwg yang bisa dibuka melalui autocad kenapa kita memerlukan gambar dalam mebangun sebuah rumah / bangunan ? Ganti, balance, tank, ground, tank, gudang, kolam, renang, hardscape. Rab pengadan air minum intek broncap. Kolam renang adalah suatu konstruksi buatan yang dirancang untuk diisi dengan air dan digunakan untuk berenang, menyelam, atau aktivitas air lainnya.

Untuk membuat kolam renang hal yang pertama dilakukan adalah kita harus survey dulu, dimana lokasi kolam renang yang akan dibuat. Sistem sirkulasi sebuah kolam renang merupakan elemen dari kolam yang menghisap air dari kolam, menyaringnya,mengatur suhunya, dan kami adalah kontraktor kolam renang menangani desain,pembuatan,perawatan dan renovasi kolam renang dengan pengalaman puluhan tahun dan. Pelayan, tempat, kunci, toilet, shaft, teras, foyer, powder room, rg. Sebaiknya anda mengganti setiap 6 bulan sekali atau bila kondisi oli sudah tidak normal. Kolam renang lomba kolam renang lomba adalah suatu konstruksi yang dibangun untuk keperluan olahraga renang, yang sesuai standar minimum yang terdapat pada peraturan fasilitas kolam renang.

Gambar Kerja Denah Detail Potongan Lift Dan Tangga File Dwg Kaula Ngora Kumpulan Gambar Kerja File Dwg
Gambar Kerja Denah Detail Potongan Lift Dan Tangga File Dwg Kaula Ngora Kumpulan Gambar Kerja File Dwg from 1.bp.blogspot.com
Sistem sirkulasi sebuah kolam renang merupakan elemen dari kolam yang menghisap air dari kolam, menyaringnya,mengatur suhunya, dan kami adalah kontraktor kolam renang menangani desain,pembuatan,perawatan dan renovasi kolam renang dengan pengalaman puluhan tahun dan. .landscape, struktur, mekanikal electrical, gambar rumah lengkap (dwg), gambar denah 2, gambar kerja bangunan, hatch autocad custom 2d, kereta 2d, kereta 3d, kia, kitchen, kitchen 2d, kitchen 3d, drawings board 3d, expo shows 2d,3d, fococopy 2,3d, kolom, kolam renang 2d. Kolam renang harus memiliki fasilitas kelengkapan seperti bak cuci kaki, kamar dan pancuran bilas, kamar ganti dan penitipan barang. Kolam renang lomba kolam renang lomba adalah suatu konstruksi yang dibangun untuk keperluan olahraga renang, yang sesuai standar minimum yang terdapat pada peraturan fasilitas kolam renang. Makan, kolam renang, grill, kolam renang, ruang pompa, koridor, garasi, pantry, dapur, tempat, sampah, rg. Untuk jenis kolam renang yang ideal itu kolam renang yang selalu senantiasa memenuhi syarat silahkan anda download desain kolam renang format dwg autocad pada tautan diatas secara gratis. Selain itu, juga memakai berbagai alat yang tepat dan kuat sebagai pondasi. Bahkan, butuh banyak pekerja hingga melibatkan kontraktor untuk membangun kolam renang itu sendiri.

Anda ingin membangun kolam renang dan perlu informasi berapa biaya membangun kolam renang 2019 ?

Sebaiknya anda mengganti setiap 6 bulan sekali atau bila kondisi oli sudah tidak normal. Untuk jenis kolam renang yang ideal itu kolam renang yang selalu senantiasa memenuhi syarat silahkan anda download desain kolam renang format dwg autocad pada tautan diatas secara gratis. Kolam renang pribadi adalah simbol status bagi pemiliknya, karena membutuhkan banyak tempat dan biaya perawatan yang besar. .kolam renang merupakan salah satu yang wajib dan diperhatikan sebelum membangun kolam renang, seukuran berapapun bangunan kolam renanng semua pasti ada aturan yang mengatur tentang pembesian atau penulangan kolam renang, baik itu sloof kolam, kolom kolam , pembesian. Gambar detail portal struktur berikut ini bisa digunakan untuk melengkapi gambar struktur maupun gambar untuk dokumen proyek dan gambar gambar ini tersedia dalam format dwg dan sahabat bisa membukanya dengan autocad minimal versi 2007. Keberadaan kolam renang di rumah tidak hanya bermanfaat untuk menyalurkan hobi berenang anggota keluarga, tapi juga membuat hunian anda terasa sejuk dan bernuansa alam. Begisting luar menggunakan pasangan 1/2 bata merah atau b. Kami jasa pembuatan kolam renang siap membantu yang perlu diketahui sebelum membuat kolam renang pribadi di rumah adalah beberapa system yang biasa di terapkan di kolam renang. Genset kolam renang digunakan sebagai sumber cadangan listrik untuk memompa ataupun memfilter air agar terlihat jernih. Anda ingin membangun kolam renang dan perlu informasi berapa biaya membangun kolam renang 2019 ? Bahkan, butuh banyak pekerja hingga melibatkan kontraktor untuk membangun kolam renang itu sendiri. Dan kolam renang ini biasanya disebut dengan kolam renang buatan atau artificial bething places. Gambar kerja kolam renang meliputi denah kolam, potongan kolam, detail kolam kolam renang pribadi adalah simbol status bagi pemiliknya, karena membutuhkan banyak tempat dan biaya perawatan yang besar.

Kami jasa pembuatan kolam renang siap membantu yang perlu diketahui sebelum membuat kolam renang pribadi di rumah adalah beberapa system yang biasa di terapkan di kolam renang struktur kolam. Makan, kolam renang, grill, kolam renang, ruang pompa, koridor, garasi, pantry, dapur, tempat, sampah, rg.

Posting Komentar

0 Komentar